狛江市の不動産情報
(マンション・一戸建・土地)
中古マンション
【和泉本町1丁目】狛江駅徒歩8分 ◆◆荘厳な佇まい、水と緑の狛江に住まう、リフォーム済マンション◆◆
(No.b2217584)価格
9,199万円
ローンシミュレーション
所在地
狛江市和泉本町一丁目 グランドメゾン狛江 F棟 136号室
物件名称
グランドメゾン狛江 F棟
交通
小田急線狛江駅 徒歩8分 600m
築年月
2013年 6月
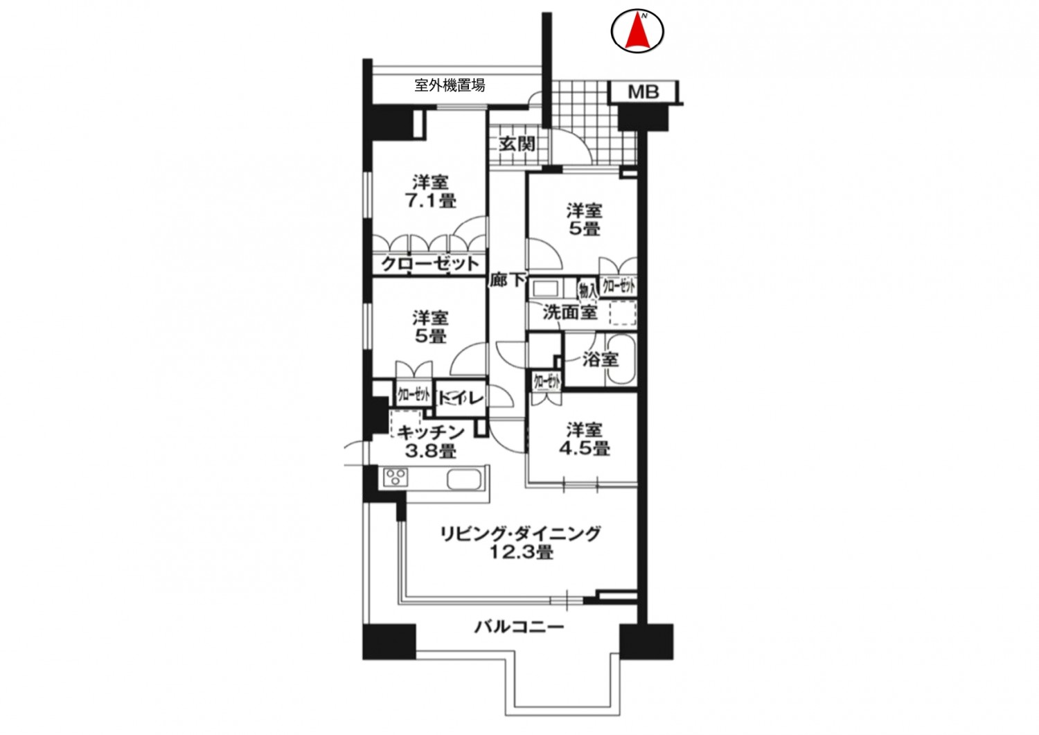
専有面積
壁芯 84.31 ㎡
間取り
4LDK
管理費
16,900円
積立金
12,060円
| 小学校区 | 狛江市立狛江第一小学校 290m | 中学校区 | 狛江市立狛江第一中学校 900m |
|---|---|---|---|
| 建物構造 | RC造 | ||
| 建物規模 | 地上14階 1階部分 | ||
| 引渡し | 相談 | 建物賃貸借区分 | - |
| 駐車場 | - | ||
| 条件等 | - | 現況 | 空家 |
| 施工会社 | 借地料 | - | |
| 契約期間 | - | 権利金 | - |
| その他費用等 |
--
--
--
--
--
--
--
--
--
--
| ||
| 用途地域 | 近隣商業地域 | バルコニー | 南 16.11㎡ |
| 土地権利 | 所有権 | 最適用途 | - |
| 管理形態 | 管理会社 | ||
| 国土法 | 仲介手数料 | - | |
| 設備等 |
|
||
| 周辺施設 | |||
| 備考等 | - | ||
| 報酬形態 | - | 取引態様 | 媒介 |
この物件をお問い合わせ
No.b2217584
問い合わせフォームに記入して送信してください




