狛江市の不動産情報
(マンション・一戸建・土地)
店舗事務所
【上馬2丁目】三軒茶屋駅 徒歩8分 ◆◆表面利回り6.73%、月額44.8万円にて賃貸中◆◆
(No.b2217504)価格
7,980万円
(税込)
ローンシミュレーション
所在地
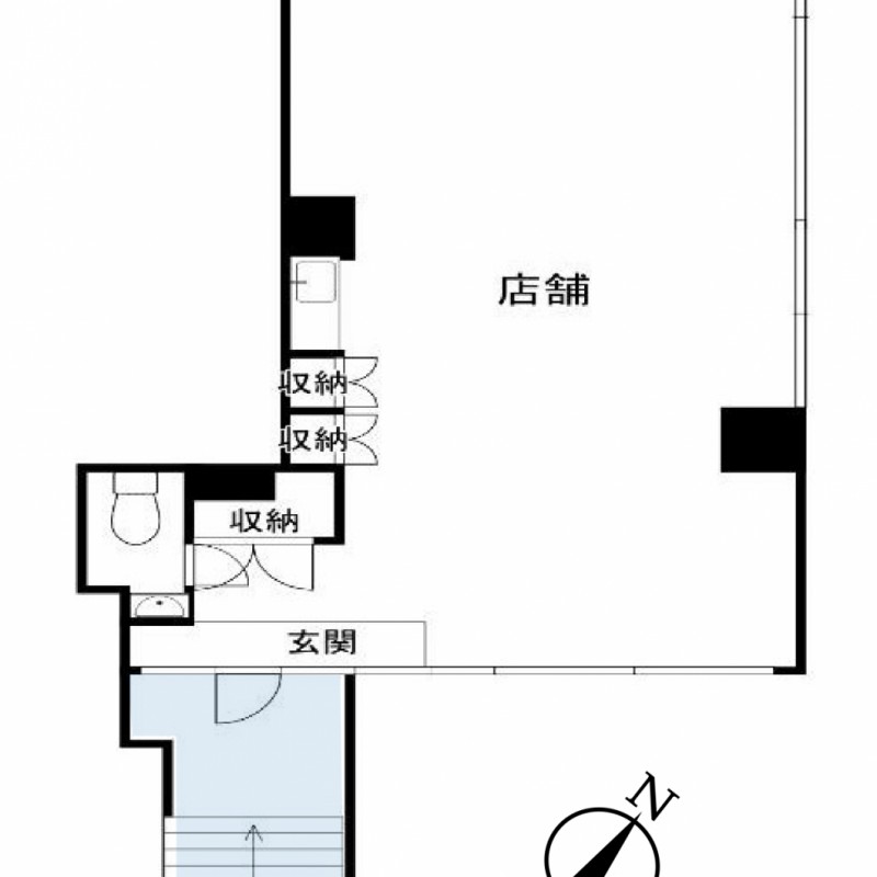
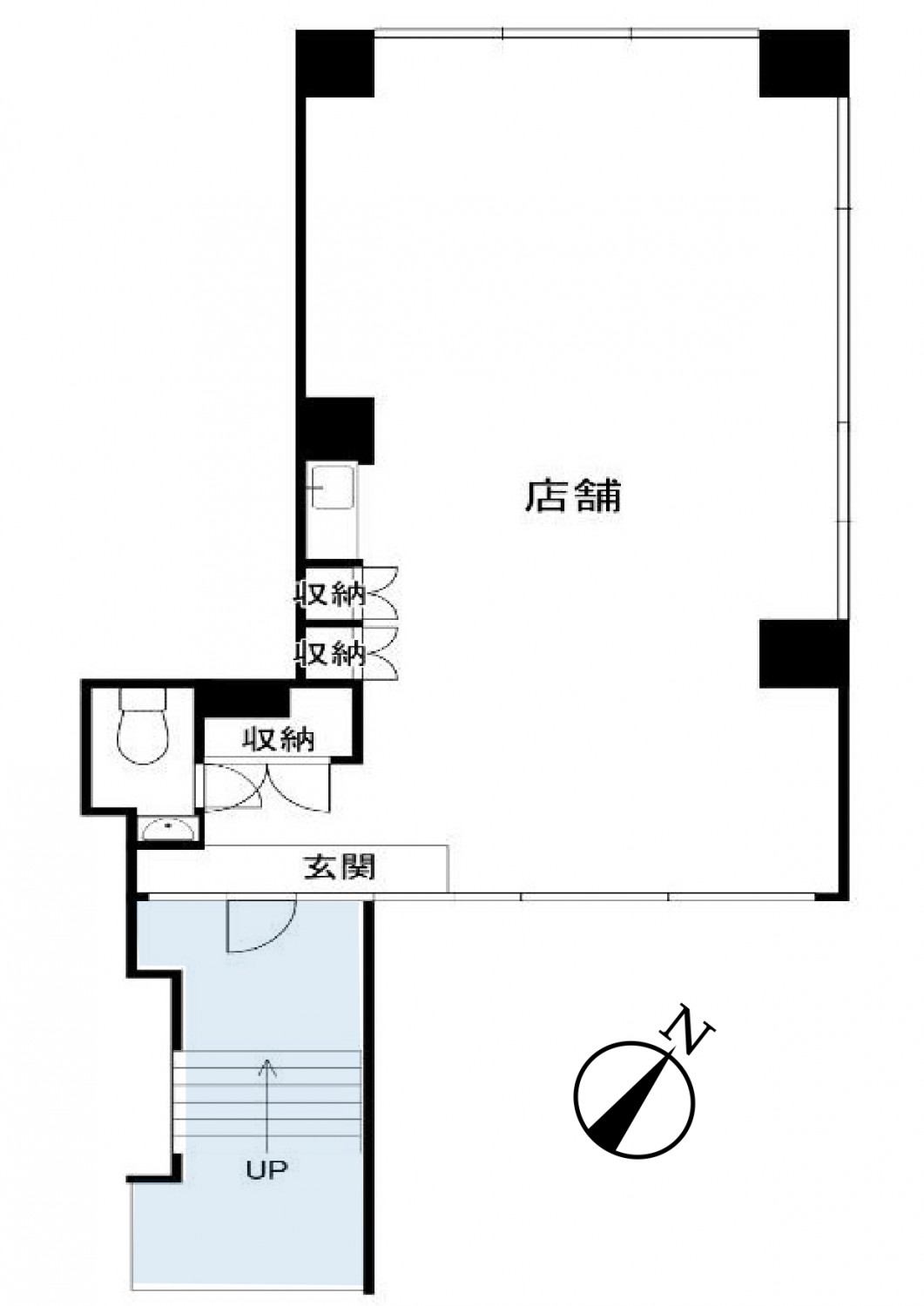
世田谷区上馬二丁目 店舗事務所
物件名称
店舗事務所
交通
東急田園都市線三軒茶屋駅 徒歩8分 600m
東急世田谷線三軒茶屋駅 徒歩8分 600m
築年月
1978年 11月
建物面積
壁芯 71.51 ㎡
間取り
ワンルーム
管理費
26,400円
積立金
12,110円
| 小学校区 | - | 中学校区 | - |
|---|---|---|---|
| 建物構造 | SRC造 | 建物賃貸借区分 | - |
| 建物規模 | 地上12階 2階部分 | 施工会社 | |
| 引渡し | 相談 | ||
| 接道状況 | 一方道路 方位南東 公道 舗装あり | ||
| 駐車場 | 空無 30,000円 | 権利金 | - |
| 条件等 | オーナーチェンジ | 現況 | 賃貸中 |
| 借地料 | - | 契約期間 | - |
| その他費用等 |
--
--
--
--
--
--
--
--
--
--
| ||
| 用途地域 | 商業地域 | 土地権利 | 所有権 |
| 管理形態 | 管理会社 | ||
| 仲介手数料 | - | 国土法 | |
| 設備等 |
|
||
| 周辺施設 | |||
| 備考等 | - | ||
| 報酬形態 | - | 取引態様 | 媒介 |
この物件をお問い合わせ
No.b2217504
問い合わせフォームに記入して送信してください




