狛江市の不動産情報
(マンション・一戸建・土地)
新築一戸建
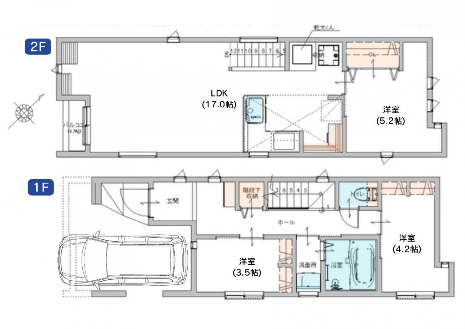
【中和泉5丁目】狛江駅 徒歩17分/国領駅 徒歩22分 ◆◆LDK17帖、家事動線がラクでうれしい新築戸建住宅◆◆
(No.b2286424)価格
5,980万円
ローンシミュレーション
所在地
狛江市中和泉五丁目 新築戸建
物件名称
新築戸建
交通
小田急線狛江駅 徒歩17分 1,300m
京王線国領駅 徒歩22分 1,700m
築年月
2026年 5月 工事完了予定
土地面積
68.3 ㎡
建物面積
86.67 ㎡
間取り
3LDK
管理費
無
| 小学校区 | 狛江市立和泉小学校 750m | 中学校区 | 狛江市立狛江第三中学校 1,500m |
|---|---|---|---|
| 建物構造 | 木造 | ||
| 建物規模 | 地上2階 | ||
| 引渡し | 相談 | ||
| 接道状況 | 一方道路 方位南西 幅員4m 私道 接面5m 舗装あり | 建物賃貸借区分 | - |
| セットバック | - | 駐車場 | 有 無料 |
| 契約期間 | - | 権利金 | - |
| 現況 | 未完成 | 借地料 | - |
| その他費用等 |
--
--
--
--
--
--
--
--
--
--
| ||
| 土地権利 | 所有権 | 私道 | - |
| 建ぺい率 | 80 % | 容積率 | 200 % |
| 地目 | 宅地 | 都市計画 | 市街化区域 |
| 用途地域 | 近隣商業地域 | 地勢 | 平坦 |
| 国土法 | 仲介手数料 | - | |
| 建築確認番号 | 第2025SBC-確02359H号 | ||
| 設備等 |
|
||
| 周辺施設 | |||
| 備考等 | - | ||
| 報酬形態 | - | 取引態様 | 媒介 |
この物件をお問い合わせ
No.b2286424
問い合わせフォームに記入して送信してください




