狛江市の不動産情報
(マンション・一戸建・土地)
中古一戸建
【三鷹市牟礼7丁目】三鷹駅 バス11分 バス停徒歩7分 ◆◆全居室南向き採光、ぬくもりにつつまれたリフォーム済中古戸建住宅◆◆
(No.b2297499)価格
6,699万円
ローンシミュレーション
所在地
三鷹市牟礼七丁目 リフォーム済中古戸建
物件名称
リフォーム済中古戸建
交通
JR中央線(快速)吉祥寺駅 徒歩34分 2,700m
JR中央線(快速)三鷹駅 徒歩39分 3,100m
築年月
2010年 12月
土地面積
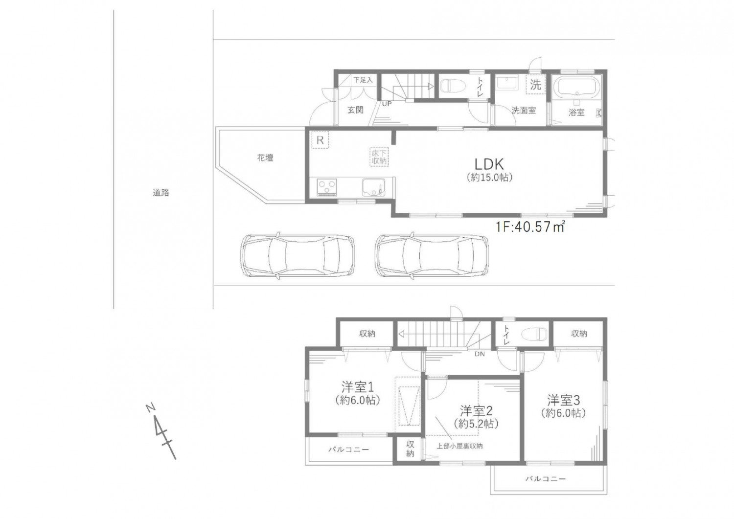
103.51 ㎡
建物面積
80.73 ㎡
間取り
3LDK
管理費
無
| 小学校区 | 三鷹市立第一小学校 350m | 中学校区 | 三鷹市立第六中学校 450m |
|---|---|---|---|
| 建物構造 | 木造 | ||
| 建物規模 | 地上2階 | ||
| 引渡し | 相談 | ||
| 接道状況 | 一方道路 方位西 幅員4m 私道 接面7.9m 舗装あり | 建物賃貸借区分 | - |
| セットバック | - | 駐車場 | 有 無料 |
| 契約期間 | - | 権利金 | - |
| 現況 | 空家 | 借地料 | - |
| その他費用等 |
--
--
--
--
--
--
--
--
--
--
| ||
| 土地権利 | 所有権 | 私道 | 有 132㎡ 負担割合400分の10 |
| 建ぺい率 | 40 % | 容積率 | 80 % |
| 地目 | 宅地 | 都市計画 | 市街化区域 |
| 用途地域 | 第一種低層住居専用地域 | 地勢 | 平坦 |
| 国土法 | 仲介手数料 | - | |
| 建築確認番号 | |||
| 設備等 |
|
||
| 周辺施設 | |||
| 備考等 | - | ||
| 報酬形態 | - | 取引態様 | 媒介 |
この物件をお問い合わせ
No.b2297499
問い合わせフォームに記入して送信してください




