狛江市の不動産情報
(マンション・一戸建・土地)
新築一戸建
【府中市四谷3丁目】中河原駅 徒歩19分 ◆◆空と緑とスマートな暮らしをあなたへ、新築戸建1号棟◆◆
(No.b2298037)価格
5,780万円
ローンシミュレーション
所在地
府中市四谷三丁目 新築戸建4号棟
物件名称
新築戸建4号棟
交通
京王線中河原駅 徒歩19分 1,500m
築年月
2026年
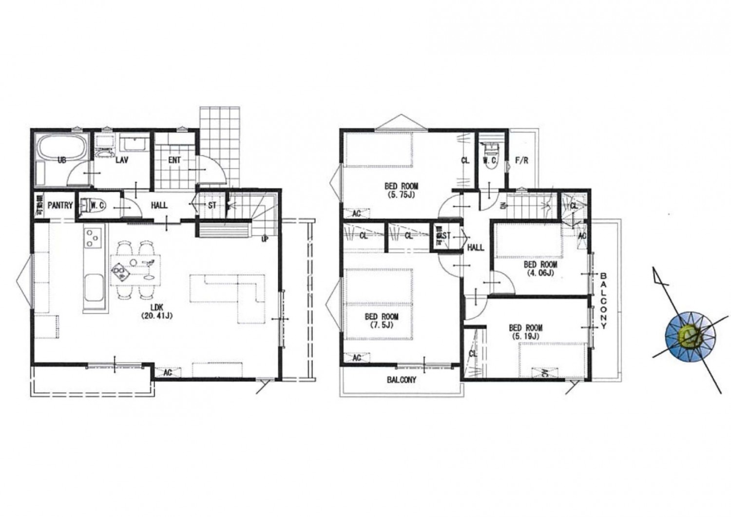
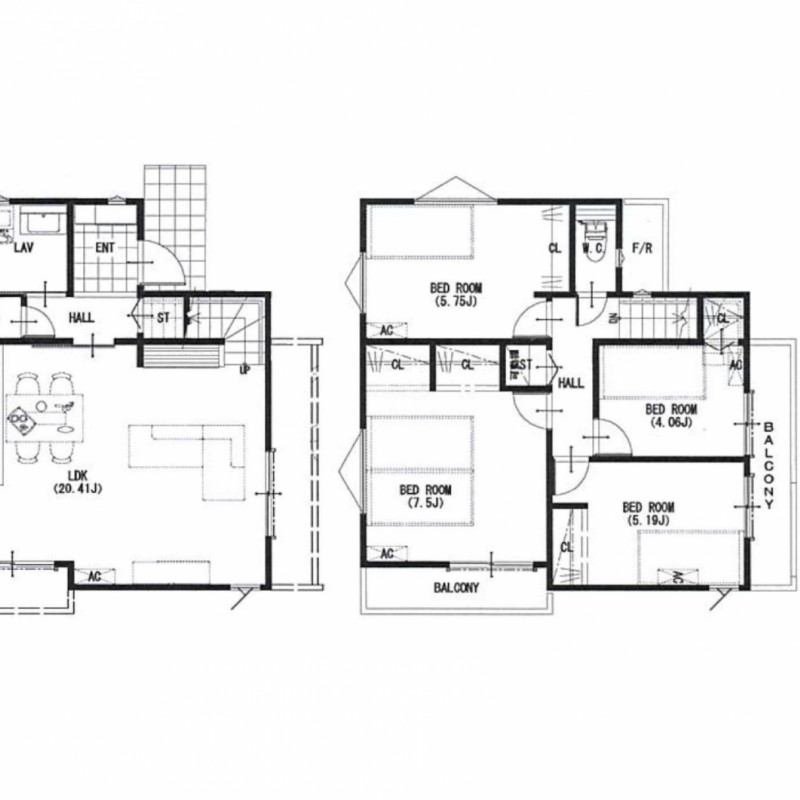
土地面積
102.1 ㎡
建物面積
98.96 ㎡
間取り
4LDK
管理費
無
| 小学校区 | 府中市立四谷小学校 400m | 中学校区 | 府中市立府中第八中学校 550m |
|---|---|---|---|
| 建物構造 | 木造 | ||
| 建物規模 | 地上2階 | ||
| 引渡し | 相談 | ||
| 接道状況 | 一方道路 方位南 幅員7.9m 公道 接面8.73m 舗装あり | 建物賃貸借区分 | - |
| セットバック | - | 駐車場 | 有 無料 |
| 契約期間 | - | 権利金 | - |
| 現況 | 未完成 | 借地料 | - |
| その他費用等 |
--
--
--
--
--
--
--
--
--
--
| ||
| 土地権利 | 所有権 | 私道 | なし |
| 建ぺい率 | 50 % | 容積率 | 100 % |
| 地目 | 宅地 | 都市計画 | 市街化区域 |
| 用途地域 | 第一種低層住居専用地域 | 地勢 | 平坦 |
| 国土法 | 仲介手数料 | - | |
| 建築確認番号 | TKK確済25-890号 | ||
| 設備等 |
|
||
| 周辺施設 | |||
| 備考等 | - | ||
| 報酬形態 | - | 取引態様 | 媒介 |
この物件をお問い合わせ
No.b2298037
問い合わせフォームに記入して送信してください




